Если вы видите это сообщение, значит, произошла проблема с загрузкой файлов в стилей (CSS) нашего сайта. Попробуйте сбросить кэш браузера (Ctrl+F5).
Если это не поможет, а вы находитесь в регионе, где возможны ограничения интернет-трафика с российских серверов - воспользуйтесь VPN.
Вход
Быстрая регистрация
Если вы у нас впервые: О проекте FAQ
0

Средняя ширина прохода в лифт, какая максимальная ширина дверей лифта?

Лишняя хромосома [147K] 7 лет назад 
2

Лифты конечно есть разные, кроме того, что есть пассажирские и грузовые, так же важно, где именно они установлены.

Это жилой дом, или торговый центр, аэропорт или офисный центр.

Все играет роль, и от этого зависят и размеры лифта, в частности и ширина входа в лифт.

Минимальный размер ширины прохода в лифтовую кабину, это 700 мм, то есть, 0,7 метра.

У лифтов с большой грузоподъемностью, так же и увеличивается ширина дверей.

Понятно, что в грузовом лифте будут перевозить крупногабаритные вещи, потому их нужно как то внести туда.

Максимальный размер может доходить и до одного метра двадцать сантиметров.

система выбрала этот ответ лучшим
0

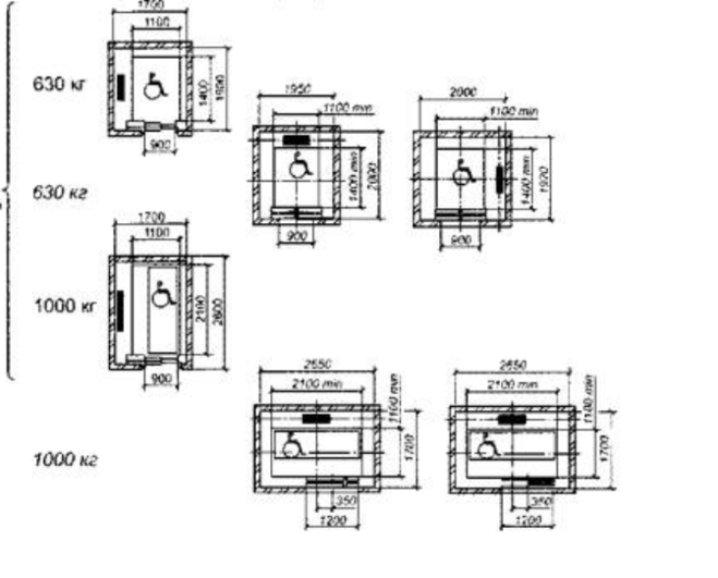
Существует ГОСТ 5746-2003 Лифты пассажирские. Основные параметры и размеры. В ГОСТе даны параметры пассажирских лифтов в зависимости от грузоподъемности, назначения зданий (общественные и промышленные, здания большой этажности, лечебно- профилактические) . Высота проема -2000 при грузоподъемности до 1000кг, и 2100 свыше. Ширина проемов от 700до 1400мм, также зависит от назначения здания и грузоподъемности лифта.

Знаете ответ?
Есть интересный вопрос? Задайте его нашему сообществу, у нас наверняка найдется ответ!
Делитесь опытом и знаниями, зарабатывайте награды и репутацию, заводите новых интересных друзей!
Задавайте интересные вопросы, давайте качественные ответы и зарабатывайте деньги. Подробнее..
регистрация